7階は現在募集がありません
1フロア募集区画あり
オーク池袋ビル 7階
物件概要
物件番号
805-00066-100物件名
オーク池袋ビル所在地
- 東京都豊島区東池袋1-21-11
- アクセスマップ
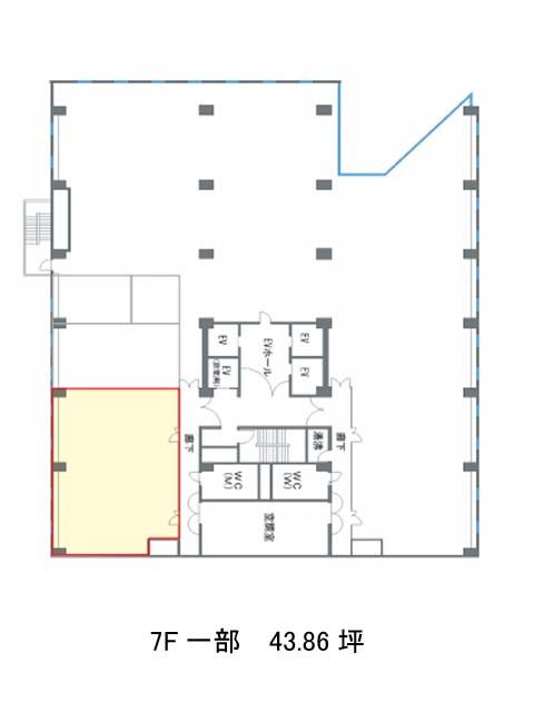
面積
43.86坪賃料(共益費含)
−入居日
募集終了保証金
−礼金
−更新料
−償却費
−竣工
1986年7月構造
SRC規模
地上12階/地下3階トイレ
男女別空調
セントラルエレベーター
有セキュリティ
有駐車場
有耐震
新耐震基準基準階天井高
2550mm空室延床面積
43.09坪情報更新日
2025/12/01オーク池袋ビルのテナント募集中区画
| 階数 | 面積 | 賃料(共益費含む) | 保証金 | 入居可能日 | 検討リスト | 詳細 |
|---|---|---|---|---|---|---|
| 7 | 43.09坪 | 応相談(応相談) | 応相談 | 即 |
…新着物件
アクセス
オーク池袋ビルの物件情報
オーク池袋ビル(豊島区東池袋)は池袋駅(30番出口)から徒歩4分の賃貸オフィスです。1986年竣工、地上12階地下3階建てSRC造のビルです。デザイン性の高い外観で、視認性が高いでしょう。新耐震基準に適合しています。設備仕様として、EV・駐車場・セントラル空調・OAフロア・貸室外の男女別トイレがあります。セキュリティは機械警備が導入されています。貸室は共用部を囲むようなコの字型をしており、窓が多く十分な採光が取り入れられるでしょう。サンシャイン通りに近く、昼夜多くの人で賑わうエリアです。オーク池袋ビルは池袋駅(30番出口)の他に東池袋駅(1番出口)徒歩8分、東池袋四丁目駅(停留所)徒歩11分で利用も可能です。

