3階は現在募集がありません
オーク池袋ビル 3階
物件概要
オーク池袋ビルのテナント募集中区画
現在、空室がございません。
オーク池袋ビルのアクセス
オーク池袋ビルの物件情報
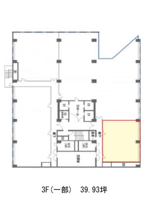
オーク池袋ビル(豊島区東池袋)は池袋駅(30番出口)から徒歩4分の賃貸オフィスです。1986年竣工、地上12階地下3階建てSRC造のビルです。デザイン性の高い外観で、視認性が高いでしょう。新耐震基準に適合しています。設備仕様として、EV・駐車場・セントラル空調・OAフロア・貸室外の男女別トイレがあります。セキュリティは機械警備が導入されています。貸室は共用部を囲むようなコの字型をしており、窓が多く十分な採光が取り入れられるでしょう。サンシャイン通りに近く、昼夜多くの人で賑わうエリアです。オーク池袋ビルは池袋駅(30番出口)の他に東池袋駅(1番出口)徒歩8分、東池袋四丁目駅(停留所)徒歩11分で利用も可能です。

