7階は現在募集がありません
1フロア募集区画あり

日産ビル 7階

前の写真 次の写真

物件概要

物件番号

805-00093-41

物件名

日産ビル

所在地

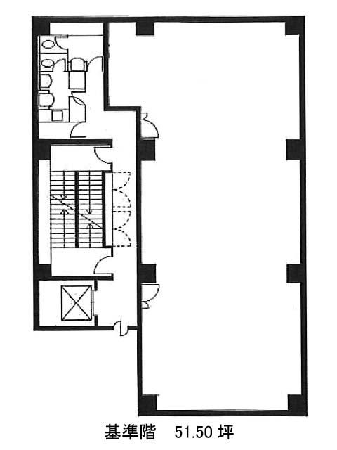
面積

51.50坪

賃料(共益費含)


入居日

募集終了

保証金

礼金

更新料

償却費

竣工

1987年11月

構造

SRC

規模

地上9階

トイレ

男女別

空調

個別空調

エレベーター

セキュリティ

駐車場

耐震

新耐震基準

基準階天井高

2470mm

空室延床面積

51.50坪

最寄駅

情報更新日

2025/12/03

日産ビルのテナント募集中区画

階数 面積 賃料(共益費含む) 保証金 入居可能日 検討リスト 詳細
6 51.50坪 応相談(応相談) 応相談 2026年4月上旬
…新着物件

日産ビルのアクセス

日産ビルの物件情報

日産ビル(豊島区東池袋)は池袋駅(29番出口)から徒歩2分の賃貸オフィスです。
1987年竣工、地上9階建てSRC造のビルです。グレーの外壁ですっきりとした外観をしています。基準階面積は51.50坪。中規模の事務所をお探しの企業様に良いでしょう。長方形のフロアは無柱空間で、機器やデスクの配置がしやすいでしょう。設備仕様は、EV・機械警備・個別空調・OAフロア・貸室外の男女別トイレがそろいます。セキュリティは有人警備で安心感があるでしょう。
日産ビルは池袋駅(29番出口)の他に東池袋駅(1番出口)徒歩10分、東池袋四丁目駅(停留所)徒歩13分で利用も可能です。

近隣のエリア・駅から探す