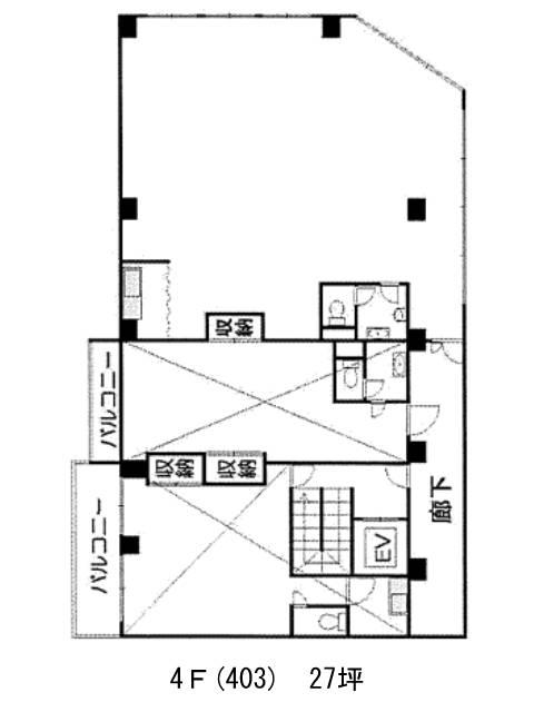
4階 403は現在募集がありません
英ビル(ハナブサ) 4階 403
物件概要
英ビル(ハナブサ)のテナント募集中区画
現在、空室がございません。
英ビル(ハナブサ)のアクセス
英ビル(ハナブサ)の物件情報
英ビル(ハナブサ)(豊島区南池袋)は池袋駅(西武南口)から徒歩5分の賃貸オフィスです。英ビル(ハナブサ)は池袋駅(西武南口)の他に東池袋駅(1番出口)徒歩7分、都電雑司ヶ谷駅(停留所)徒歩7分で利用も可能です。

