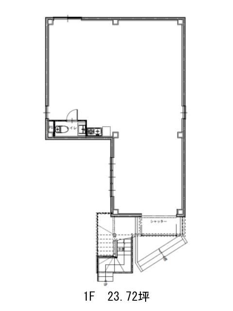
ライズ上目黒のテナント募集中区画
| 階数 | 面積 | 賃料(共益費含む) | 保証金 | 入居可能日 | 検討リスト | 詳細 |
|---|---|---|---|---|---|---|
| 3 | 21.93坪 | 603,075円/月(27,500円/坪) | 328万円 | 即 |
…新着物件
アクセス
ライズ上目黒の物件情報
ライズ上目黒(目黒区上目黒)は中目黒駅(出口)から徒歩6分の賃貸オフィスです。ライズ上目黒は中目黒駅(出口)の他に祐天寺駅(西口1)徒歩9分、代官山駅(正面口)徒歩14分で利用も可能です。

