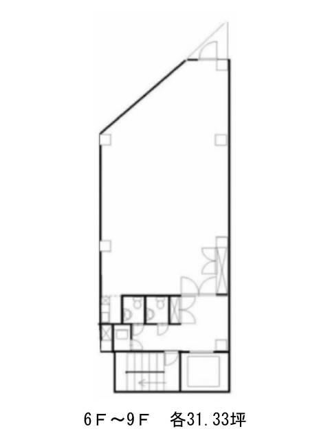
いちご中目黒ビルのテナント募集中区画
| 階数 | 面積 | 賃料(共益費含む) | 保証金 | 入居可能日 | 検討リスト | 詳細 |
|---|---|---|---|---|---|---|
| 9 | 31.33坪 | 947,732円/月(30,250円/坪) | 689万円 | 2026年3月上旬 |
…新着物件
アクセス
いちご中目黒ビルの物件情報
いちご中目黒ビル(目黒区青葉台)は中目黒駅(出口)から徒歩9分の賃貸オフィスです。いちご中目黒ビルは中目黒駅(出口)の他に池尻大橋駅(東口)徒歩13分、代官山駅(正面口)徒歩13分で利用も可能です。

