東都ビルのテナント募集中区画
| 階数 | 面積 | 賃料(共益費含む) | 保証金 | 入居可能日 | 検討リスト | 詳細 |
|---|---|---|---|---|---|---|
| 8 | 39.18坪 | 818,862円/月(20,900円/坪) | 446万円 | 即 |
…新着物件
東都ビルのアクセス
東都ビルの物件情報
東都ビル(港区虎ノ門)は神谷町駅(4A番出口)から徒歩2分の賃貸オフィスです。神谷町駅からすぐ、桜田通り沿い角地の立地が魅力。ビル1階ではファミリーレストランのジョナサンが営業中ですので、ランチなどに便利なほか、物件の目印にもなるでしょう。
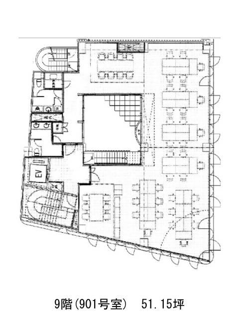
東都ビルの外観はグレーのパネル張りです。1フロアは最大100坪の規模。基準階は2部屋に分割されています。OAフロア有り。男女別トイレと給湯室は室外に設置されていますので、気兼ねなくご使用いただけます。
ビル周辺は飲食店・コンビニのほかに、大手銀行の支店もしくはATMが点在しており、利便性に優れた環境です。東都ビルは神谷町駅(4A番出口)の他に虎ノ門ヒルズ駅(A1番出口)徒歩6分、御成門駅(A5番出口)徒歩10分で利用も可能です。

