5階は現在募集がありません
虎ノ門桜ビル 5階
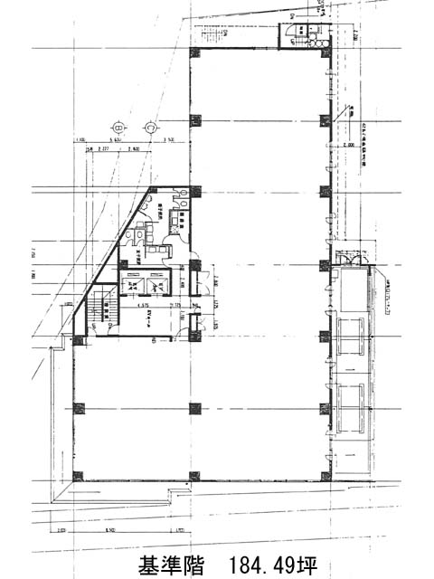
物件概要
虎ノ門桜ビルのテナント募集中区画
現在、空室がございません。
虎ノ門桜ビルのアクセス
虎ノ門桜ビルの物件情報
虎ノ門桜ビル(港区虎ノ門)は神谷町駅(3番出口)から徒歩4分の賃貸オフィスです。白いタイル貼りの壁面に窓が2列並び、スッキリした外観のビルです。2008年に外観・エントランス・空調の改修が済んでおり築年数を感じさせない明るさと清潔感があります。機械警備・駐車場・個別空調を備えています。室内はグレーのOAフロアと白い壁面でシンプルな造りです。周辺は芝公園や増上寺等の緑が多く、都心でありながら自然の豊富なエリアです。切通坂の上に建ち見晴らしがよく、階数によっては緑の茂る眺望をお楽しみ頂けるでしょう。虎ノ門桜ビルは神谷町駅(3番出口)の他に御成門駅(A5番出口)徒歩5分、虎ノ門ヒルズ駅(A1番出口)徒歩10分で利用も可能です。

