9階は現在募集がありません
Shinagawa HEART 9階
物件概要
Shinagawa HEARTのテナント募集中区画
現在、空室がございません。
Shinagawa HEARTのアクセス
Shinagawa HEARTの物件情報
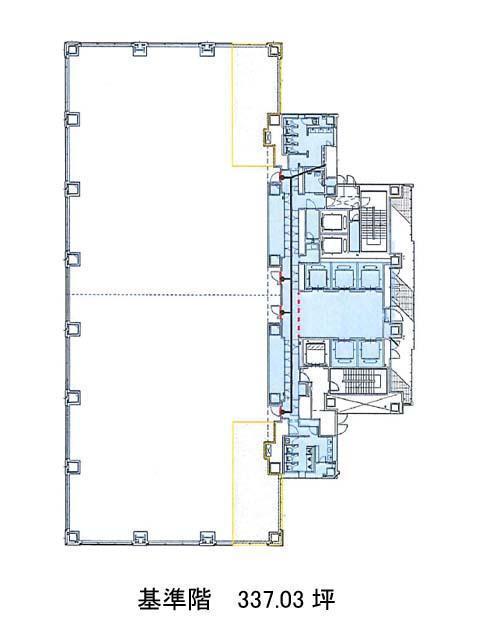
Shinagawa HEART(港区港南)は品川駅(港南口)から徒歩6分の賃貸オフィスです。2019年竣工、S造地上26階地下2階建の築浅ビルです。中層部はミラーガラス、高層部は白い壁面で軽やかな外観をしています。オフィスエントランスは天井高8000㎜の広々とした空間で、来客を心地よく迎えられるでしょう。間取りは無柱の長方形ですっきりとしています。オフィス専用EV・駐車場・機械警備・個別空調・OAフロア・貸室外の男女別トイレといった設備仕様をしています。各階に非接触型ICカードキー設置・防犯カメラと充実のセキュリティをしています。

