SOC高輪ビルのテナント募集中区画
| 階数 | 面積 | 賃料(共益費含む) | 保証金 | 入居可能日 | 検討リスト | 詳細 |
|---|---|---|---|---|---|---|
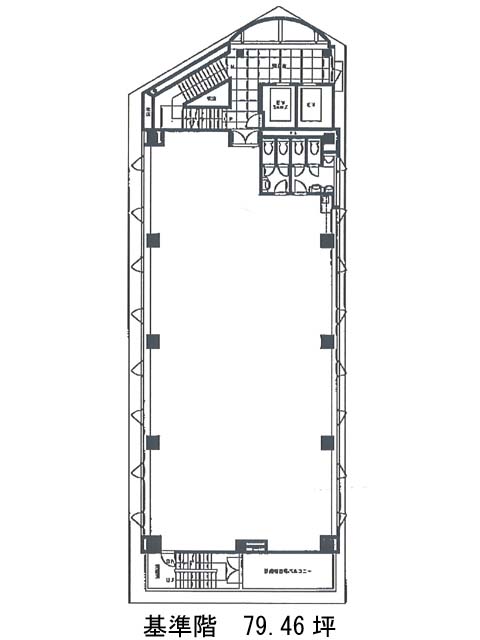
| 4 | 79.46坪 | 2,185,150円/月(27,500円/坪) | 2,383万円 | 即 | ||
| 8 | 79.46坪 | 2,185,150円/月(27,500円/坪) | 2,383万円 | 2026年2月上旬 |
…新着物件
アクセス
SOC高輪ビルの物件情報
SOC高輪ビル(港区高輪)は品川駅(出口)から徒歩6分の賃貸オフィスです。2008年竣工の物件ということもあり、建物自体が比較的綺麗です。大通り沿いに面した立地となっているため、日当たり良好です。外観は全体的にグレーを基調タイル張りとライン状に並んだミラーウォールが美しい建物です。基準階面積は約70坪、ビル内にはOAフロアが備えられており、トイレは男女別となっております。また、駐車場を完備しているため、車の利用がしやすい環境となっております。周辺にはコンビニや飲食店、郵便局、銀行などが複数あるので利便性が高いです。SOC高輪ビルは品川駅(出口)の他に泉岳寺駅(A1番出口)徒歩7分、高輪ゲートウェイ駅(出口)徒歩8分で利用も可能です。

