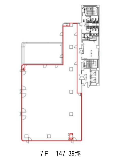
7階は現在募集がありません
日本生命三田ビル 7階
物件概要
日本生命三田ビルのテナント募集中区画
現在、空室がございません。
日本生命三田ビルのアクセス
日本生命三田ビルの物件情報
日本生命三田ビル(港区三田)は泉岳寺駅(A4番出口)から徒歩2分の賃貸オフィスです。1985年竣工、地上8階地下1階建のビルです。新耐震基準を満たしています。角地に建ち、視認性が高いでしょう。EV2基・機械式駐車場・男女別トイレ・個別空調といった設備仕様で、オフィスは24時間利用可能です。エントランスは吹抜けにミラー貼りの円柱が建ち、白い壁面で明るい印象があります。管理状態が良く、清潔感のある建物です。基準階面積は約241坪。間取りは支柱が中央に無い長方形で、配置が容易な形状をしています。日本生命三田ビルは泉岳寺駅(A4番出口)の他に高輪ゲートウェイ駅(出口)徒歩9分、三田駅(A1番出口)徒歩11分で利用も可能です。

