PMO田町のテナント募集中区画
| 階数 | 面積 | 賃料(共益費含む) | 保証金 | 入居可能日 | 検討リスト | 詳細 |
|---|---|---|---|---|---|---|
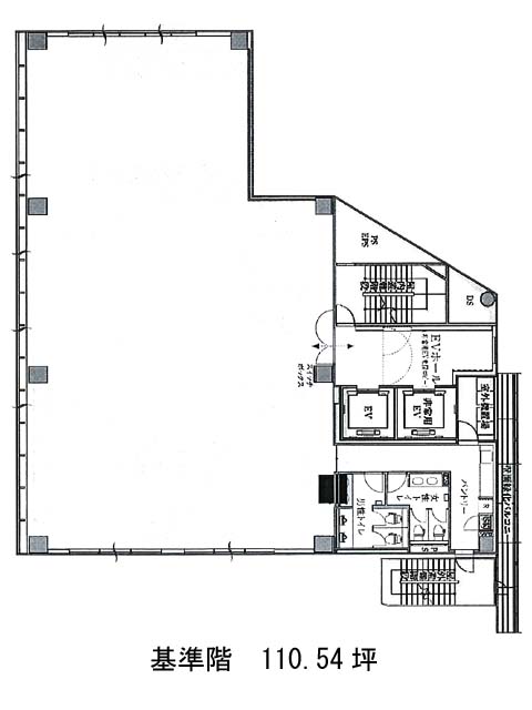
| 11 | 110.54坪 | 応相談(応相談) | 応相談 | 2026年3月上旬 |
…新着物件
アクセス
PMO田町の物件情報
PMO田町(港区芝)は三田駅(A3番出口)から徒歩1分の賃貸オフィスです。地上12階建てで2014年竣工の物件ということもあり、上層階からの眺望はとても良好で建物自体も比較的綺麗です。外観は全体的にガラス張りになっており、スタイリッシュな印象があります。エントランスホールやエレベーターホールは清潔感があり、落ち着いた空間となっております。基準階面積は約110坪、ビル内にはOAフロアが備えられており、トイレは男女別となっております。周辺にはコンビニや飲食店、郵便局、銀行などがあるため、とても利便性が高いです。PMO田町は三田駅(A3番出口)の他に田町駅(三田口)徒歩3分、芝公園駅(A1番出口)徒歩10分で利用も可能です。

