7階は現在募集がありません
1フロア募集区画あり

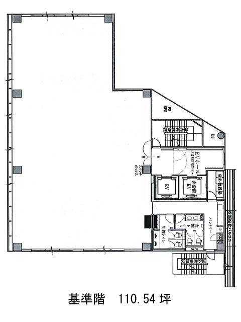
PMO田町 7階

前の写真 次の写真

物件概要

物件番号

126-00172-60

物件名

PMO田町

所在地

面積

110.54坪

賃料(共益費含)


入居日

募集終了

保証金

礼金

更新料

償却費

竣工

2014年2月

構造

SRC

規模

地上12階/地下1階

トイレ

男女別

空調

個別空調

エレベーター

セキュリティ

駐車場

耐震

新耐震基準

基準階天井高

2360~2800mm

空室延床面積

110.54坪

最寄駅

情報更新日

2026/01/16

PMO田町のテナント募集中区画

階数 面積 賃料(共益費含む) 保証金 入居可能日 検討リスト 詳細
11 110.54坪 応相談(応相談) 応相談 2026年3月上旬
…新着物件

アクセス

PMO田町の物件情報

PMO田町(港区芝)は三田駅(A3番出口)から徒歩1分の賃貸オフィスです。
地上12階建てで2014年竣工の物件ということもあり、上層階からの眺望はとても良好で建物自体も比較的綺麗です。外観は全体的にガラス張りになっており、スタイリッシュな印象があります。エントランスホールやエレベーターホールは清潔感があり、落ち着いた空間となっております。基準階面積は約110坪、ビル内にはOAフロアが備えられており、トイレは男女別となっております。周辺にはコンビニや飲食店、郵便局、銀行などがあるため、とても利便性が高いです。
PMO田町は三田駅(A3番出口)の他に田町駅(三田口)徒歩3分、芝公園駅(A1番出口)徒歩10分で利用も可能です。

近隣のエリア・駅から探す