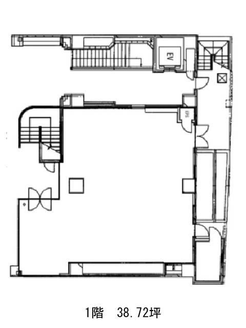
セブン三田ビル 1階
物件概要
物件番号
126-00218-61物件名
セブン三田ビル所在地
- 東京都港区芝5-32-11
- アクセスマップ
面積
38.72坪賃料(共益費含)
月額2,129,600円(55,000円/坪)
入居日
2026年1月上旬保証金
23,232,000円礼金
なし更新料
新1ケ月償却費
2ケ月竣工
1989年10月構造
SRC規模
地上10階/地下1階トイレ
不明空調
個別空調エレベーター
有セキュリティ
有駐車場
無耐震
新耐震基準基準階天井高
2400mm空室延床面積
38.72坪情報更新日
2025/12/12セブン三田ビルのテナント募集中区画
| 階数 | 面積 | 賃料(共益費含む) | 保証金 | 入居可能日 | 検討リスト | 詳細 |
|---|---|---|---|---|---|---|
| 1 | 38.72坪 | 2,129,600円/月(55,000円/坪) | 2,323万円 | 2026年1月上旬 |
…新着物件
アクセス
セブン三田ビルの物件情報
セブン三田ビル(港区芝)は三田駅(A7番出口)から徒歩1分の賃貸オフィスです。1989年竣工。地上10階建ての物件ということもあり、上層階からの眺望は良好です。外観は全体的にシックな色合いをしており、スタイリッシュな印象があります。エントランスホールやエレベーターホールは清潔感があり、落ち着いた空間となっております。ビル内にはOAフロアが備えられており、トイレは男女別、セキュリティは機械警備を導入しております。耐震性も新耐震基準であるため、安心です。また周辺にはコンビニや飲食店、郵便局、銀行などがあるため、利便性が高いです。セブン三田ビルは三田駅(A7番出口)の他に田町駅(三田口)徒歩3分、芝公園駅(A1番出口)徒歩9分で利用も可能です。

