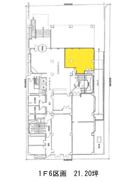
日本女子会館ビル 1階 1-6
物件概要
物件番号
128-00041-164物件名
日本女子会館ビル所在地
- 東京都港区芝公園2-6-8
- アクセスマップ
面積
21.20坪賃料(共益費含)
月額349,800円(16,500円/坪)
入居日
2025年12月上旬保証金
1,590,000円礼金
なし更新料
なし償却費
なし竣工
1974年9月構造
SRC規模
地上8階/地下1階トイレ
男女別空調
個別空調エレベーター
有セキュリティ
駐車場
有耐震
耐震補強済み基準階天井高
空室延床面積
21.20坪情報更新日
2025/11/14日本女子会館ビルのテナント募集中区画
| 階数 | 面積 | 賃料(共益費含む) | 保証金 | 入居可能日 | 検討リスト | 詳細 |
|---|---|---|---|---|---|---|
| 1 | 21.20坪 | 349,800円/月(16,500円/坪) | 159万円 | 2025年12月上旬 |
…新着物件
アクセス
日本女子会館ビルの物件情報
日本女子会館ビル(港区芝公園)は芝公園駅(A3番出口)から徒歩3分の賃貸オフィスです。芝公園に面しており、都心にいながら自然の緑を感じられる、落ち着いたロケーションが魅力。働く中でリフレッシュの場がすぐそばにある点は、日々の働きごこちに大きく影響してきます。
貸室は中小規模が中心で、柔軟な区画展開が可能。スタートアップや分室利用、士業系オフィスなどにもフィットしやすい構成です。水回りは2022年にリニューアル済みで、共用部にきれいにまとめられており、来訪者にも好印象を与えます。
最寄り駅からのアクセスも良好で、来客対応や通勤のしやすさもポイント。静けさと利便性を両立した、隠れた好立地の一棟です。日本女子会館ビルは芝公園駅(A3番出口)の他に大門駅(A6番出口)徒歩6分、御成門駅(A1番出口)徒歩7分で利用も可能です。

