第二木内ビル 3階
物件概要
物件番号
129-00133-10物件名
第二木内ビル所在地
- 東京都港区芝大門2-11-17
- アクセスマップ
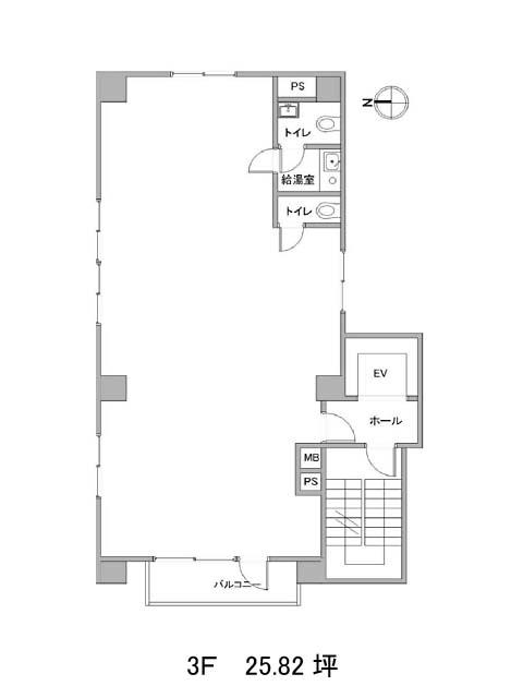
面積
28.30坪賃料(共益費含)
月額435,820円(15,400円/坪)
入居日
即保証金
2,575,300円礼金
なし更新料
新1ケ月償却費
2ケ月竣工
1988年5月構造
SRC規模
地上6階/地下1階トイレ
男女別空調
エレベーター
有セキュリティ
有駐車場
無耐震
新耐震基準基準階天井高
2400mm空室延床面積
28.30坪情報更新日
2025/12/11第二木内ビルのテナント募集中区画
| 階数 | 面積 | 賃料(共益費含む) | 保証金 | 入居可能日 | 検討リスト | 詳細 |
|---|---|---|---|---|---|---|
| 3 | 28.30坪 | 435,820円/月(15,400円/坪) | 257万円 | 即 |
…新着物件
第二木内ビルのアクセス
第二木内ビルの物件情報
第二木内ビル(港区芝大門)は大門駅(A6番出口)から徒歩4分の賃貸オフィスです。第二木内ビルは大門駅(A6番出口)の他に芝公園駅(A3番出口)徒歩5分、浜松町駅(南口1)徒歩6分で利用も可能です。

