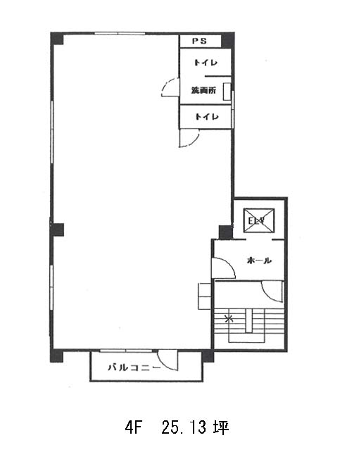
第二木内ビルのテナント募集中区画
| 階数 | 面積 | 賃料(共益費含む) | 保証金 | 入居可能日 | 検討リスト | 詳細 |
|---|---|---|---|---|---|---|
| 3 | 28.30坪 | 435,820円/月(15,400円/坪) | 220万円 | 即 |
…新着物件
第二木内ビルのアクセス
第二木内ビルの物件情報
第二木内ビル(港区芝大門)は大門駅(A6番出口)から徒歩4分の賃貸オフィスです。第二木内ビルは大門駅(A6番出口)の他に芝公園駅(A3番出口)徒歩5分、浜松町駅(南口1)徒歩6分で利用も可能です。

