2階は現在募集がありません
1フロア募集区画あり

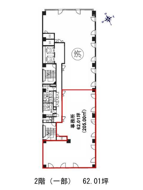
西新橋第一法規ビル 2階

前の写真 次の写真

物件概要

物件番号

131-00130-112

物件名

西新橋第一法規ビル

所在地

面積

62.01坪

賃料(共益費含)


入居日

募集終了

保証金

礼金

更新料

償却費

竣工

1993年11月

構造

SRC

規模

地上8階

トイレ

男女別

空調

個別空調

エレベーター

セキュリティ

駐車場

耐震

新耐震基準

基準階天井高

2500mm

空室延床面積

60.47坪

最寄駅

情報更新日

2026/02/13

西新橋第一法規ビルのテナント募集中区画

階数 面積 賃料(共益費含む) 保証金 入居可能日 検討リスト 詳細
4 60.47坪 応相談(応相談) 応相談
…新着物件

西新橋第一法規ビルのアクセス

西新橋第一法規ビルの物件情報

西新橋第一法規ビル(港区西新橋)は虎ノ門ヒルズ駅(B2番出口)から徒歩7分の賃貸オフィスです。
外観は全体的にグレーを基調とした色合いで、とてもシンプルなデザインとなっております。エントランスホールやエレベーターホールは清潔感があり、とても高級感を感じられます。また周辺にはコンビニや飲食店などが複数あるため、ランチも楽しめるでしょう。ビル内にはOAフロアが備えられており、トイレは男女別となっております。駐車場もあるため、社用車を使う場合も便利です。基準階は約120坪あり、室内はほぼ長方形の形をしているため、比較的レイアウトは組みやすいでしょう。
西新橋第一法規ビルは虎ノ門ヒルズ駅(B2番出口)の他に御成門駅(A5番出口)徒歩7分、内幸町駅(A3番出口)徒歩7分で利用も可能です。

近隣のエリア・駅から探す