西新橋第一法規ビル 4階 401
物件概要
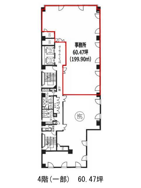
西新橋第一法規ビルのテナント募集中区画
| 階数 | 面積 | 賃料(共益費含む) | 保証金 | 入居可能日 | 検討リスト | 詳細 |
|---|---|---|---|---|---|---|
| 4 | 60.47坪 | 応相談(応相談) | 応相談 | 即 |
…新着物件
西新橋第一法規ビルのアクセス
西新橋第一法規ビルの物件情報
西新橋第一法規ビル(港区西新橋)は虎ノ門ヒルズ駅(B2番出口)から徒歩7分の賃貸オフィスです。外観は全体的にグレーを基調とした色合いで、とてもシンプルなデザインとなっております。エントランスホールやエレベーターホールは清潔感があり、とても高級感を感じられます。また周辺にはコンビニや飲食店などが複数あるため、ランチも楽しめるでしょう。ビル内にはOAフロアが備えられており、トイレは男女別となっております。駐車場もあるため、社用車を使う場合も便利です。基準階は約120坪あり、室内はほぼ長方形の形をしているため、比較的レイアウトは組みやすいでしょう。西新橋第一法規ビルは虎ノ門ヒルズ駅(B2番出口)の他に御成門駅(A5番出口)徒歩7分、内幸町駅(A3番出口)徒歩7分で利用も可能です。

