メディコ西新橋ビルのテナント募集中区画
| 階数 | 面積 | 賃料(共益費含む) | 保証金 | 入居可能日 | 検討リスト | 詳細 |
|---|---|---|---|---|---|---|
| 4 | 26.60坪 | 413,490円/月(15,545円/坪) | 201万円 | 即 |
…新着物件
アクセス
メディコ西新橋ビルの物件情報
メディコ西新橋ビル(港区西新橋)は御成門駅(A5番出口)から徒歩5分の賃貸オフィスです。ミラーガラスとタイル張りの異なる素材で構成された外観が特徴のオフィスビルです。エントランス・エレベーターホールはコンパクトにまとめられています。
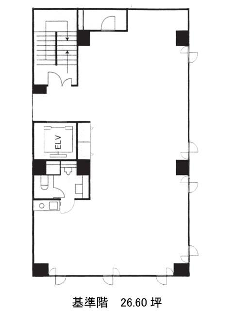
当ビルは26.6坪が基準となる貸室のサイズ。エレベーターからダイレクトインの仕様です。室内はコの字変形のような少し変わった間取りですが、その分面白いレイアウトが組めそう。トイレと給湯室の水回りも室内に設置されています。
当物件は日比谷通りから少し路地に入った立地。1階に調剤薬局のテナント様が入居中ですので、目印になるでしょう。メディコ西新橋ビルは御成門駅(A5番出口)の他に内幸町駅(A3番出口)徒歩8分、虎ノ門ヒルズ駅(B2番出口)徒歩9分で利用も可能です。

