8階 801は現在募集がありません
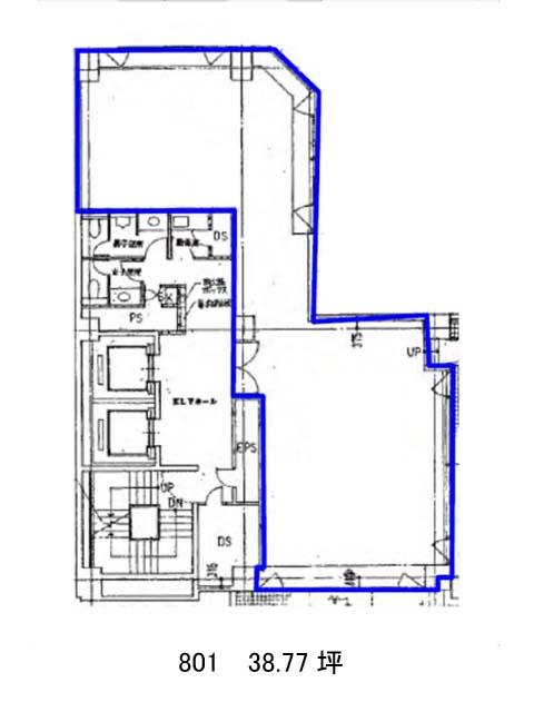
東麻布1丁目ビル 8階 801
物件概要
東麻布1丁目ビルのテナント募集中区画
現在、空室がございません。
東麻布1丁目ビルのアクセス
東麻布1丁目ビルの物件情報
東麻布1丁目ビル(港区東麻布)は赤羽橋駅(赤羽橋口)から徒歩6分の賃貸オフィスです。桜田通り沿いの角地に位置し、前面道路との接地面も広いため、視認性・存在感ともに高水準です。背後には東京タワーを望むロケーションで、ビル外観は落ち着いたブラウンタイル張り。エントランスやホールも広く、来訪者への印象も良好です。
基準階は最大約210坪。中央に柱はありますが、直線上に並んでおり、動線設計やレイアウトを工夫しやすい点が魅力です。OAフロア、個別空調、機械警備、駐車場完備と、設備も充実しています。1階にはスーパーが入居中で、ちょっとした買い物にも便利。東麻布1丁目ビルは赤羽橋駅(赤羽橋口)の他に神谷町駅(1番出口)徒歩8分、芝公園駅(A4番出口)徒歩10分で利用も可能です。

