白金台ビルのテナント募集中区画
| 階数 | 面積 | 賃料(共益費含む) | 保証金 | 入居可能日 | 検討リスト | 詳細 |
|---|---|---|---|---|---|---|
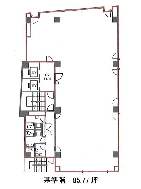
| 3 | 85.77坪 | 応相談(応相談) | 応相談 | 相談 |
…新着物件
アクセス
白金台ビルの物件情報
白金台ビル(港区白金台)は白金台駅(1番出口)から徒歩7分の賃貸オフィスです。外観は全体的にシックな色合いを基調としており、シンプルなデザインとなっております。エントランスホールやエレベーターホールは清潔感があり、落ち着いた空間となっております。また周辺にはコンビニや飲食店、郵便局などがあるため、とても利便性が高いです。室内は、基準階が約85坪あり、ほぼ長方形の形をしているため、比較的レイアウトは組みやすいでしょう。ビル内にはOAフロアが備えられており、トイレは男女別となっております。白金台ビルは白金台駅(1番出口)の他に目黒駅(東口)徒歩7分、五反田駅(A7番出口)徒歩14分で利用も可能です。

