9階は現在募集がありません
AURA麻布台 9階
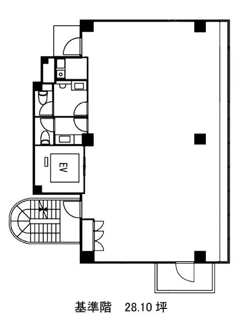
物件概要
AURA麻布台のテナント募集中区画
現在、空室がございません。
アクセス
AURA麻布台の物件情報
AURA麻布台(港区麻布台)は神谷町駅(1番出口)から徒歩4分の賃貸オフィスです。AURA麻布台は神谷町駅(1番出口)の他に赤羽橋駅(赤羽橋口)徒歩10分、虎ノ門ヒルズ駅(A1番出口)徒歩11分で利用も可能です。

