六本木NKビル 4階
物件概要
物件番号
147-00001-30物件名
六本木NKビル所在地
- 東京都港区六本木3-3-7
- アクセスマップ
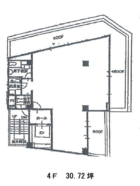
面積
30.72坪賃料(共益費含)
月額540,672円(17,600円/坪)
入居日
即保証金
3,932,160円礼金
なし更新料
新1ケ月償却費
2ケ月竣工
1987年4月構造
RC規模
地上5階/地下1階トイレ
男女別空調
個別空調エレベーター
有セキュリティ
駐車場
無耐震
新耐震基準基準階天井高
2400mm空室延床面積
84.80坪情報更新日
2026/03/02六本木NKビルのテナント募集中区画
| 階数 | 面積 | 賃料(共益費含む) | 保証金 | 入居可能日 | 検討リスト | 詳細 |
|---|---|---|---|---|---|---|
| 2 | 54.08坪 | 951,808円/月(17,600円/坪) | 692万円 | 即 | ||
| 4 | 30.72坪 | 540,672円/月(17,600円/坪) | 393万円 | 即 |
…新着物件
六本木NKビルのアクセス
六本木NKビルの物件情報
六本木NKビル(港区六本木)は六本木一丁目駅(2番出口)から徒歩3分の賃貸オフィスです。1987年竣工。外観は全体的に淡いグレーを基調としたのタイルで、建物のフォルムは特徴的です。基準階は約30坪あり、室内には余計な柱が少ないため、比較的レイアウトは組みやすいでしょう。ビル内にはOAフロア、個別空調もあるため設備面は充実しております。トイレは男女別となっており、耐震性も新耐震基準であるため、安心です。そして周辺にはコンビニや飲食店、郵便局などが複数あるためとても利便性が高いです。またビルの1Fにはコンビニが入っており、休憩時などに活用しやすいでしょう。六本木NKビルは六本木一丁目駅(2番出口)の他に六本木駅(5番出口)徒歩7分、溜池山王駅(13番出口)徒歩10分で利用も可能です。

