4階は現在募集がありません
EBISU ONE BLDG 4階
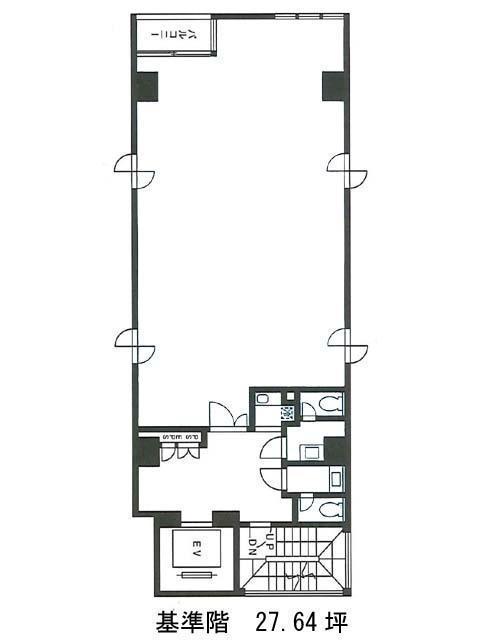
物件概要
EBISU ONE BLDGのテナント募集中区画
現在、空室がございません。
EBISU ONE BLDGのアクセス
EBISU ONE BLDGの物件情報
EBISU ONE BLDG(渋谷区恵比寿)は恵比寿駅(1番出口)から徒歩3分の賃貸オフィスです。EBISU ONE BLDGは恵比寿駅(1番出口)の他に代官山駅(東口)徒歩11分で利用も可能です。

