EBISU ONE BLDGのテナント募集中区画
| 階数 | 面積 | 賃料(共益費含む) | 保証金 | 入居可能日 | 検討リスト | 詳細 |
|---|---|---|---|---|---|---|
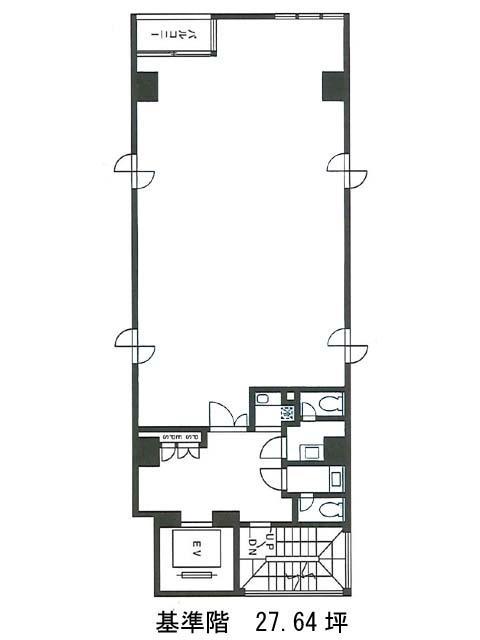
| 7 | 27.64坪 | 応相談(応相談) | 応相談 | 2026年4月 |
…新着物件
アクセス
EBISU ONE BLDGの物件情報
EBISU ONE BLDG(渋谷区恵比寿)は恵比寿駅(1番出口)から徒歩3分の賃貸オフィスです。EBISU ONE BLDGは恵比寿駅(1番出口)の他に代官山駅(東口)徒歩11分で利用も可能です。

