5階は現在募集がありません
マリックス恵比寿ビル/MARIX恵比寿ビル 5階
物件概要
マリックス恵比寿ビル/MARIX恵比寿ビルのテナント募集中区画
現在、空室がございません。
マリックス恵比寿ビル/MARIX恵比寿ビルのアクセス
マリックス恵比寿ビル/MARIX恵比寿ビルの物件情報
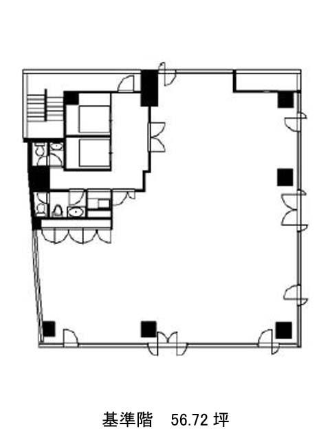
マリックス恵比寿ビル/MARIX恵比寿ビル(渋谷区恵比寿)は恵比寿駅(東口)から徒歩4分の賃貸オフィスです。1990竣工、地上7階建て、新耐震基準に適合した鉄骨鉄筋コンクリート造です。線路沿いの通りから少し入った所にあります。外観はグレーの石彫に窓が連続するデザインで、ガラスが筒のようにカーブしたエントランスには特別感があります。室内はL字型の無柱空間ですので、レイアウトが組みやすそうです。また開閉可能な窓が複数設置されていますので、換気もスムーズです。主な設備はエレベーター2基、空調、OAフロア、男女別トイレ、機械警備等です。また、1階で営業中のカフェの他、バラエティ豊かな飲食店が徒歩圏内に充実していますので、ランチタイムも楽しいでしょう。マリックス恵比寿ビル/MARIX恵比寿ビルは恵比寿駅(東口)の他に代官山駅(東口)徒歩15分で利用も可能です。

