2階は現在募集がありません
1フロア募集区画あり

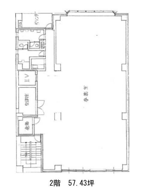
東新産業ビル 2階

前の写真 次の写真

物件概要

物件番号

160-00045-10

物件名

東新産業ビル

所在地

面積

57.43坪

賃料(共益費含)


入居日

募集終了

保証金

礼金

更新料

償却費

竣工

1977年2月

構造

SRC

規模

地上6階

トイレ

男女別

空調

エレベーター

セキュリティ

駐車場

耐震

新耐震基準

基準階天井高

空室延床面積

64.00坪

最寄駅

情報更新日

2025/10/21

東新産業ビルのテナント募集中区画

階数 面積 賃料(共益費含む) 保証金 入居可能日 検討リスト 詳細
2 64.00坪 1,126,400円/月(17,600円/坪) 832万円
…新着物件

東新産業ビルのアクセス

東新産業ビルの物件情報

東新産業ビル(渋谷区恵比寿西)は恵比寿駅(2番出口)から徒歩5分の賃貸オフィスです。
外観は温かみのあるレンガ調で統一されており、恵比寿の街並みに自然と馴染む落ち着いた佇まい。静かに構える雰囲気が、業務に集中したい企業にフィットします。
基準階は約64坪の整形区画で、1フロア1テナント構成。エレベーターからダイレクトに入室できる設計で、来客時の動線やプライバシー性にも配慮されています。室内には一部柱があるため、レイアウト検討時には事前確認をおすすめしますが、用途に応じた工夫で機能的な配置も可能です。
OAフロア・個別空調・光回線・男女別トイレ(室内設置)など、実用性の高い設備が揃っており、安定した業務環境を支えます。
周囲は喧騒を避けた落ち着きあるロケーションで、コンビニや飲食店も徒歩圏内。駅からのアクセスに加え、近隣施設の利便性も兼ね備えたバランスの良い立地です。
東新産業ビルは恵比寿駅(2番出口)の他に代官山駅(東口)徒歩9分、渋谷駅(新南口)徒歩11分で利用も可能です。

近隣のエリア・駅から探す