4階は現在募集がありません
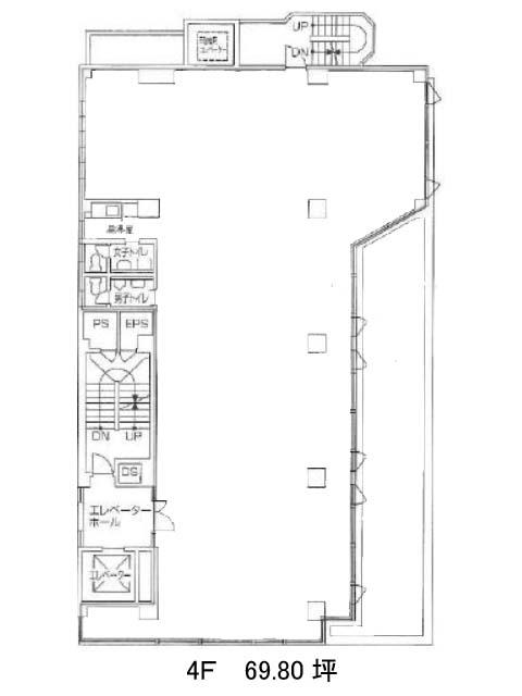
AZ渋谷本町 4階
物件概要
AZ渋谷本町のテナント募集中区画
現在、空室がございません。
AZ渋谷本町のアクセス
AZ渋谷本町の物件情報
AZ渋谷本町(渋谷区本町)は初台駅(出口2)から徒歩5分の賃貸オフィスです。1992年竣工、地上5階建て。落ち着いたブラウンの石張りからなる直線的な外観から、格式高い印象を持ちます。基準階(2階・3階)は約86坪、共用設備のまとまったすっきりとした間取りです。周辺に高い建物が少ないため、窓やバルコニーからの開けた眺望も魅力です。設備面はエレベーター1基、個別空調、OAフロア、男女別トイレ等が備えられています。また、付近の商店街やオペラシティには、飲食店をはじめ郵便局、銀行など様々な施設が揃っていますので、お仕事や休憩の際に活用できます。バス停も近いため、バスのご利用も可能です。AZ渋谷本町は初台駅(出口2)の他に西新宿五丁目駅(A2番出口)徒歩13分、幡ヶ谷駅(北口)徒歩14分で利用も可能です。

