3階は現在募集がありません
左門イレブンビル 3階
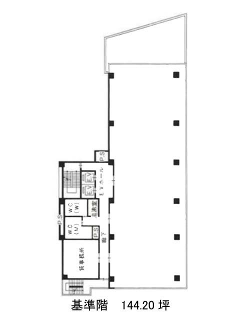
物件概要
左門イレブンビルのテナント募集中区画
現在、空室がございません。
左門イレブンビルのアクセス
左門イレブンビルの物件情報
左門イレブンビル(新宿区左門町)は四谷三丁目駅(1番出口)から徒歩1分の賃貸オフィスです。左門イレブンビルは四谷三丁目駅(1番出口)の他に曙橋駅(A1番出口)徒歩8分、信濃町駅(出口)徒歩12分で利用も可能です。

