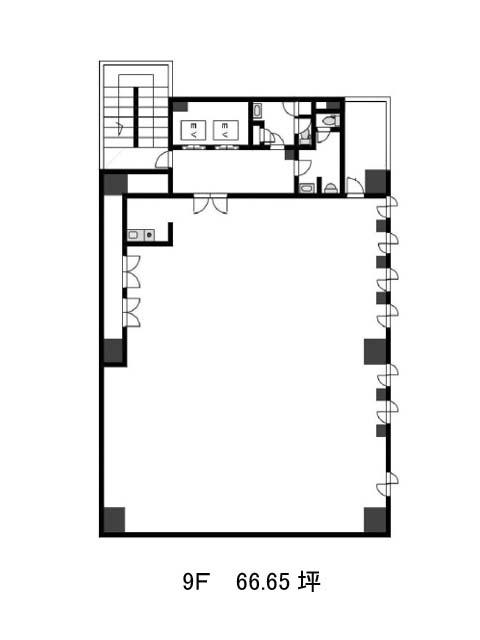
9階は現在募集がありません
三廣ビル 9階
物件概要
三廣ビルのテナント募集中区画
現在、空室がございません。
三廣ビルのアクセス
三廣ビルの物件情報
三廣ビル(新宿区四谷坂町)は曙橋駅(A4番出口)から徒歩7分の賃貸オフィスです。靖国通りに面した本物件は、メタリックなベージュワントーンの整った外観が落ち着いた印象を与えます。
基準階は67坪で、用途や働き方に応じてフレキシブルに使える小規模分割での募集にも対応。分割後もレイアウトしやすい間取りで、スタートアップから複数部署でのご利用まで幅広く対応可能です。駅からやや距離はありますが、複数路線が徒歩圏内です。三廣ビルは曙橋駅(A4番出口)の他に市ヶ谷駅(7番出口)徒歩8分、四ツ谷駅(3番出口)徒歩9分で利用も可能です。

