4階は現在募集がありません
小谷田(コヤタ)ビル 4階
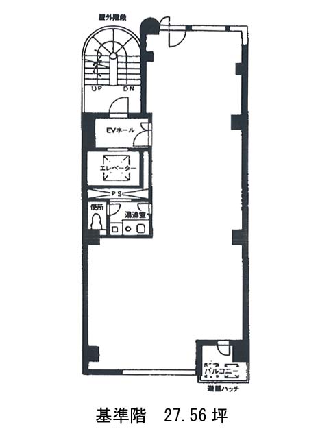
物件概要
小谷田(コヤタ)ビルのテナント募集中区画
現在、空室がございません。
アクセス
小谷田(コヤタ)ビルの物件情報
小谷田(コヤタ)ビル(新宿区四谷)は四ツ谷駅(2番出口)から徒歩4分の賃貸オフィスです。小谷田(コヤタ)ビルは四ツ谷駅(2番出口)の他に四谷三丁目駅(3番出口)徒歩8分、曙橋駅(A4番出口)徒歩12分で利用も可能です。

