Biz Feel 四谷3丁目 B1-1F
物件概要
物件番号
208-00019-62物件名
Biz Feel 四谷3丁目所在地
- 東京都新宿区四谷3-13-11
- アクセスマップ
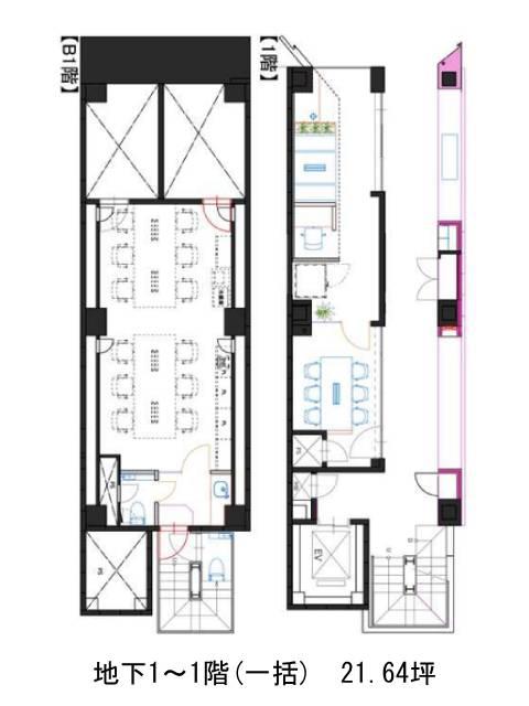
面積
21.64坪賃料(共益費含)
月額642,708円(29,700円/坪)
入居日
即保証金
応相談礼金
なし更新料
なし償却費
なし竣工
1994年3月構造
S造規模
地上9階/地下1階トイレ
男女別空調
個別空調エレベーター
有セキュリティ
有駐車場
無耐震
新耐震基準基準階天井高
2430mm空室延床面積
41.82坪情報更新日
2025/12/16Biz Feel 四谷3丁目のテナント募集中区画
| 階数 | 面積 | 賃料(共益費含む) | 保証金 | 入居可能日 | 検討リスト | 詳細 |
|---|---|---|---|---|---|---|
| B1-1F | 21.64坪 | 642,708円/月(29,700円/坪) | 応相談 | 即 | ||
| 2 | 20.18坪 | 665,940円/月(33,000円/坪) | 応相談 | 2026年4月上旬 |
…新着物件
アクセス
Biz Feel 四谷3丁目の物件情報
Biz Feel 四谷3丁目(新宿区四谷)は四谷三丁目駅(1番出口)から徒歩2分の賃貸オフィスです。Biz Feel 四谷3丁目は四谷三丁目駅(1番出口)の他に曙橋駅(A1番出口)徒歩9分、新宿御苑前駅(2番出口)徒歩9分で利用も可能です。

