ビデオフォーカスビル 2階 A新着
物件概要
物件番号
225-00031-42物件名
ビデオフォーカスビル所在地
- 東京都新宿区若葉2-7
- アクセスマップ
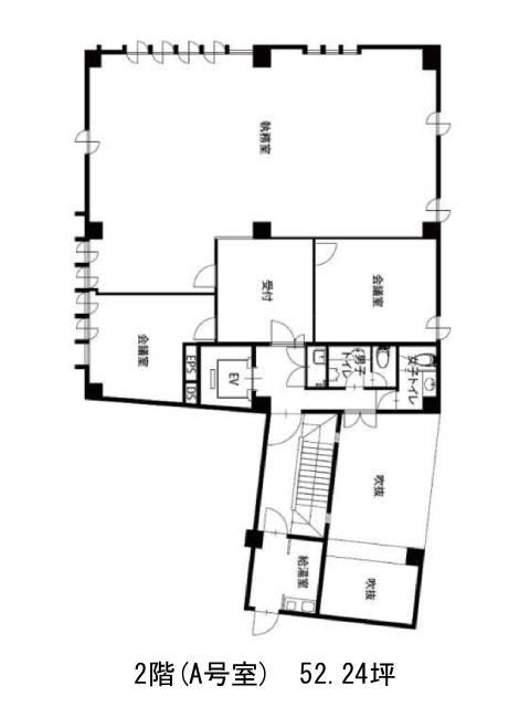
面積
52.24坪賃料(共益費含)
月額976,888円(18,700円/坪)
入居日
2026年4月下旬保証金
3,552,320円礼金
なし更新料
新1ケ月償却費
なし竣工
1990年12月構造
RC規模
地上4階/地下1階トイレ
男女別空調
個別空調エレベーター
有セキュリティ
駐車場
無耐震
新耐震基準基準階天井高
空室延床面積
52.24坪情報更新日
2025/12/11ビデオフォーカスビルのテナント募集中区画
| 階数 | 面積 | 賃料(共益費含む) | 保証金 | 入居可能日 | 検討リスト | 詳細 |
|---|---|---|---|---|---|---|
| 2 | 52.24坪 | 976,888円/月(18,700円/坪) | 355万円 | 2026年4月下旬 |
…新着物件
アクセス
ビデオフォーカスビルの物件情報
ビデオフォーカスビル(新宿区若葉)は四谷三丁目駅(3番出口)から徒歩7分の賃貸オフィスです。1990年竣工、地上4階地下1階建RC造のビルです。ブラウンの外壁で温かみのある外観をしています。交差点の角地に立地する為、視認性が高いでしょう。貸室は20坪台~、小規模なものがそろいスタートアップの企業に良いでしょう。設備仕様として、EV・個別空調・男女別トイレ(階数による)があります。貸室は柱が部屋の中央に無く、配置がしやすいでしょう。円通寺通り沿いに建ち、周辺は低層階の住宅が建ち並ぶエリアです。ビデオフォーカスビルは四谷三丁目駅(3番出口)の他に四ツ谷駅(2番出口)徒歩9分、曙橋駅(A1番出口)徒歩12分で利用も可能です。

