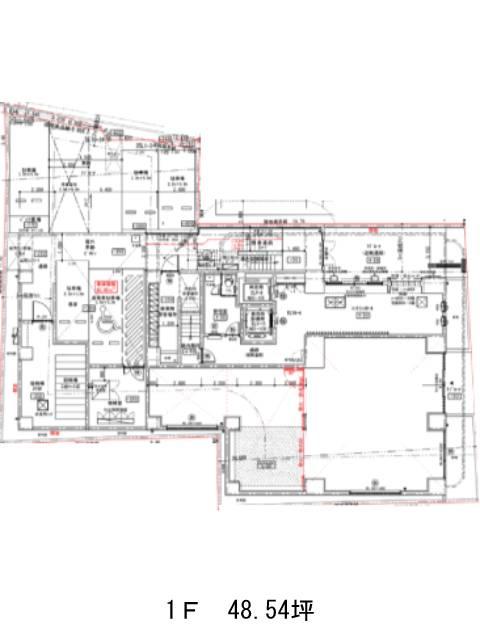
1階は現在募集がありません
Arbor Yotsuya/アーバー四谷 1階
物件概要
Arbor Yotsuya/アーバー四谷のテナント募集中区画
現在、空室がございません。
Arbor Yotsuya/アーバー四谷のアクセス
Arbor Yotsuya/アーバー四谷の物件情報
Arbor Yotsuya/アーバー四谷(新宿区信濃町)は四谷三丁目駅(1番出口)から徒歩5分の賃貸オフィスです。2023年8月竣工、地上7階建S造の新築ビルです。外観はブラウンの外壁に、一部ミラーガラス貼りの部分がありデザイン性があります。貸室は40坪~100坪程度の小~中規模のものが幅広く揃い、多様なビジネスに対応できるでしょう。設備仕様として、EV2基・空調・給湯室・男女別トイレがそろいます。バルコニーがある貸室もあり、リフレッシュスペースとして良いでしょう。近隣に大学があり、また多くの飲食店が軒を連ね活気のあるエリアです。Arbor Yotsuya/アーバー四谷は四谷三丁目駅(1番出口)の他に信濃町駅(出口)徒歩8分、国立競技場駅(A1番出口)徒歩12分で利用も可能です。

