Arbor Yotsuya/アーバー四谷 4階 (SetUP)
物件概要
物件番号
229-00036-4物件名
Arbor Yotsuya/アーバー四谷所在地
- 東京都新宿区信濃町1-2
- アクセスマップ
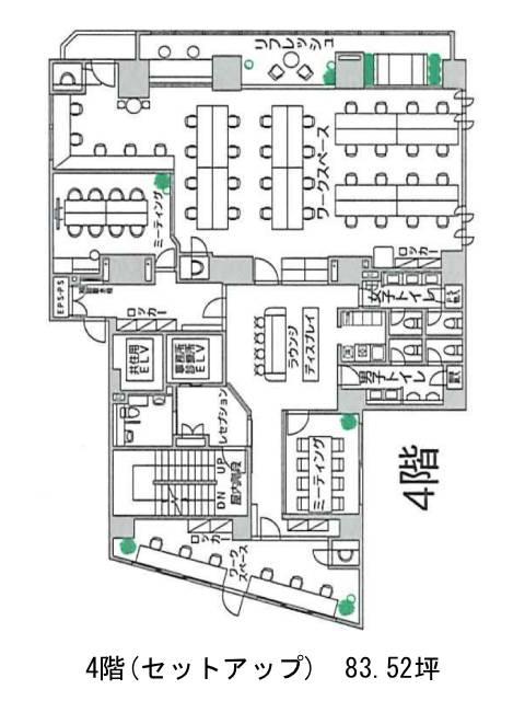
面積
83.52坪賃料(共益費含)
月額2,388,672円(28,600円/坪)
入居日
即保証金
13,029,120円礼金
なし更新料
なし償却費
なし竣工
2024年1月構造
S造規模
地上12階トイレ
男女別空調
個別空調エレベーター
有セキュリティ
有駐車場
有耐震
新耐震基準基準階天井高
空室延床面積
453.54坪情報更新日
2025/12/16Arbor Yotsuya/アーバー四谷のテナント募集中区画
…新着物件
アクセス
Arbor Yotsuya/アーバー四谷の物件情報
Arbor Yotsuya/アーバー四谷(新宿区信濃町)は四谷三丁目駅(1番出口)から徒歩5分の賃貸オフィスです。2023年8月竣工、地上7階建S造の新築ビルです。外観はブラウンの外壁に、一部ミラーガラス貼りの部分がありデザイン性があります。貸室は40坪~100坪程度の小~中規模のものが幅広く揃い、多様なビジネスに対応できるでしょう。設備仕様として、EV2基・空調・給湯室・男女別トイレがそろいます。バルコニーがある貸室もあり、リフレッシュスペースとして良いでしょう。近隣に大学があり、また多くの飲食店が軒を連ね活気のあるエリアです。Arbor Yotsuya/アーバー四谷は四谷三丁目駅(1番出口)の他に信濃町駅(出口)徒歩8分、国立競技場駅(A1番出口)徒歩12分で利用も可能です。

