信濃町SANMOビルのテナント募集中区画
| 階数 | 面積 | 賃料(共益費含む) | 保証金 | 入居可能日 | 検討リスト | 詳細 |
|---|---|---|---|---|---|---|
| 7 | 25.25坪 | 352,000円/月(13,942円/坪) | 84万円 | 即 |
…新着物件
アクセス
信濃町SANMOビルの物件情報
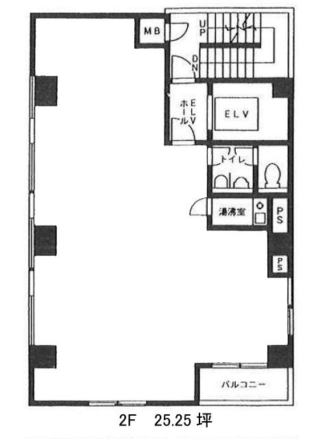
信濃町SANMOビル(新宿区信濃町)は四谷三丁目駅(1番出口)から徒歩6分の賃貸オフィスです。外苑東通り沿いの角地にある、11階建てのビルです。茶色の外壁に尖った黒い屋根が特徴的な外観です。基準階は25.25坪の広さがあり、無柱空間になっているので、レイアウトしやすいです。給湯設備とトイレは室内に設置されています。物件から新宿通りの方向へ行くと、寺院が多くある地域になります。この地域に寺院が集中している理由には、1634年に江戸城西丸が全焼した際、城の北西の外堀拡張・新設計画に従って、麹町の寺社が四谷に集団移転してきたという歴史があります。信濃町SANMOビルは四谷三丁目駅(1番出口)の他に信濃町駅(出口)徒歩7分、国立競技場駅(A1番出口)徒歩12分で利用も可能です。

