4階は現在募集がありません
1フロア募集区画あり

信濃町SANMOビル 4階

前の写真 次の写真

物件概要

物件番号

229-00008-40

物件名

信濃町SANMOビル

所在地

面積

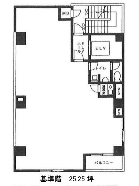
25.25坪

賃料(共益費含)


入居日

募集終了

保証金

礼金

更新料

償却費

竣工

1990年9月

構造

SRC

規模

地上11階

トイレ

男女共用

空調

個別空調

エレベーター

セキュリティ

駐車場

耐震

新耐震基準

基準階天井高

空室延床面積

25.25坪

最寄駅

情報更新日

2025/12/25

信濃町SANMOビルのテナント募集中区画

階数 面積 賃料(共益費含む) 保証金 入居可能日 検討リスト 詳細
7 25.25坪 352,000円/月(13,942円/坪) 84万円
…新着物件

信濃町SANMOビルのアクセス

信濃町SANMOビルの物件情報

信濃町SANMOビル(新宿区信濃町)は四谷三丁目駅(1番出口)から徒歩6分の賃貸オフィスです。
外苑東通り沿いの角地にある、11階建てのビルです。茶色の外壁に尖った黒い屋根が特徴的な外観です。基準階は25.25坪の広さがあり、無柱空間になっているので、レイアウトしやすいです。給湯設備とトイレは室内に設置されています。物件から新宿通りの方向へ行くと、寺院が多くある地域になります。この地域に寺院が集中している理由には、1634年に江戸城西丸が全焼した際、城の北西の外堀拡張・新設計画に従って、麹町の寺社が四谷に集団移転してきたという歴史があります。
信濃町SANMOビルは四谷三丁目駅(1番出口)の他に信濃町駅(出口)徒歩7分、国立競技場駅(A1番出口)徒歩12分で利用も可能です。

近隣のエリア・駅から探す