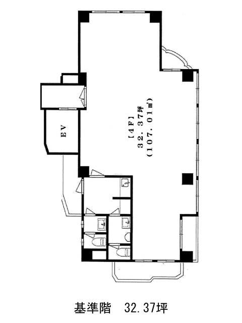
三朝庵ビルのテナント募集中区画
| 階数 | 面積 | 賃料(共益費含む) | 保証金 | 入居可能日 | 検討リスト | 詳細 |
|---|---|---|---|---|---|---|
| 4 | 32.37坪 | 330,000円/月(10,194円/坪) | 180万円 | 2025年12月中旬 |
…新着物件
アクセス
三朝庵ビルの物件情報
三朝庵ビル(新宿区馬場下町)は早稲田駅(3a番出口)から徒歩2分の賃貸オフィスです。三朝庵ビルは早稲田駅(3a番出口)の他に西早稲田駅(2番出口)徒歩13分、面影橋駅(停留所)徒歩13分で利用も可能です。

