一番町村上ビルのテナント募集中区画
| 階数 | 面積 | 賃料(共益費含む) | 保証金 | 入居可能日 | 検討リスト | 詳細 |
|---|---|---|---|---|---|---|
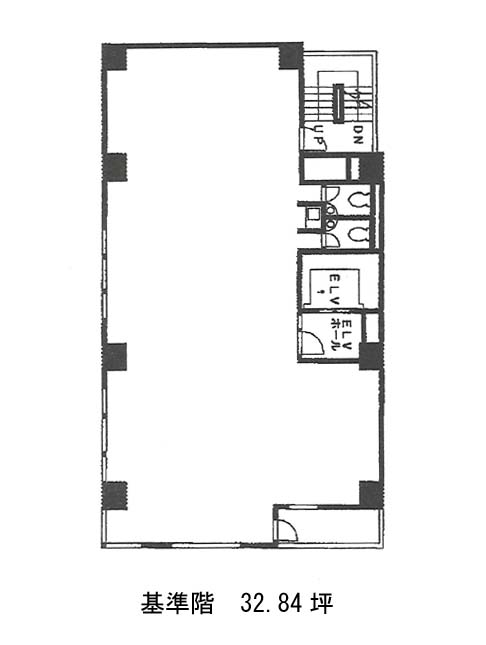
| 4 | 32.84坪 | 433,488円/月(13,200円/坪) | 236万円 | 即 |
…新着物件
一番町村上ビルのアクセス
一番町村上ビルの物件情報
一番町村上ビル(千代田区一番町)は半蔵門駅(5番出口)から徒歩2分の賃貸オフィスです。1987年竣工、地上7階建ての鉄骨鉄筋コンクリート造。一番町交差点の付近に建ちます。外観は白のタイル調、一階には現在クリニックが入居中です。基準階面積は約33坪、室内はすっきりとした無柱空間ですので、コンパクトな室内を効率的にレイアウト出来ます。また、角地にあるため二面採光で明るく、換気もしやすいでしょう。当物件にエレベーターは1基設置され、空調は個別空調、トイレは男女別でご使用いただけます。近くにコンビニやスーパーがあり、郵便局も徒歩圏内にありますので気軽に利用可能です。一番町村上ビルは半蔵門駅(5番出口)の他に麹町駅(3番出口)徒歩9分、市ヶ谷駅(A3番出口)徒歩10分で利用も可能です。

