一番町村上ビル 4階
物件概要
物件番号
377-00025-30物件名
一番町村上ビル所在地
- 東京都千代田区一番町9-7
- アクセスマップ
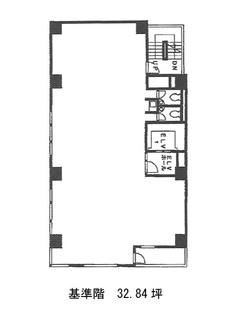
面積
32.84坪賃料(共益費含)
月額433,488円(13,200円/坪)
入居日
即保証金
2,364,480円礼金
1ケ月更新料
新1ケ月償却費
1ケ月竣工
1987年3月構造
SRC規模
地上7階トイレ
男女別空調
個別空調エレベーター
有セキュリティ
有駐車場
無耐震
新耐震基準基準階天井高
2400mm空室延床面積
32.84坪情報更新日
2026/03/02一番町村上ビルのテナント募集中区画
| 階数 | 面積 | 賃料(共益費含む) | 保証金 | 入居可能日 | 検討リスト | 詳細 |
|---|---|---|---|---|---|---|
| 4 | 32.84坪 | 433,488円/月(13,200円/坪) | 236万円 | 即 |
…新着物件
一番町村上ビルのアクセス
一番町村上ビルの物件情報
一番町村上ビル(千代田区一番町)は半蔵門駅(5番出口)から徒歩2分の賃貸オフィスです。1987年竣工、地上7階建ての鉄骨鉄筋コンクリート造。一番町交差点の付近に建ちます。外観は白のタイル調、一階には現在クリニックが入居中です。基準階面積は約33坪、室内はすっきりとした無柱空間ですので、コンパクトな室内を効率的にレイアウト出来ます。また、角地にあるため二面採光で明るく、換気もしやすいでしょう。当物件にエレベーターは1基設置され、空調は個別空調、トイレは男女別でご使用いただけます。近くにコンビニやスーパーがあり、郵便局も徒歩圏内にありますので気軽に利用可能です。一番町村上ビルは半蔵門駅(5番出口)の他に麹町駅(3番出口)徒歩9分、市ヶ谷駅(A3番出口)徒歩10分で利用も可能です。

