5階は現在募集がありません
1フロア募集区画あり

一番町村上ビル 5階

前の写真 次の写真

物件概要

物件番号

377-00025-40

物件名

一番町村上ビル

所在地

面積

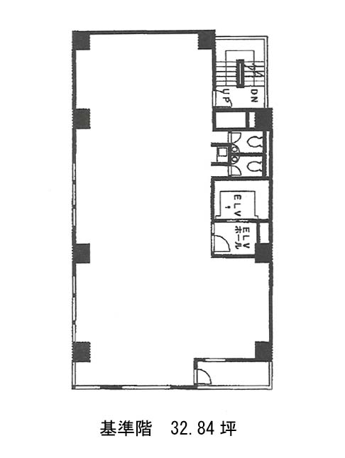
32.84坪

賃料(共益費含)


入居日

募集終了

保証金

礼金

更新料

償却費

竣工

1987年3月

構造

SRC

規模

地上7階

トイレ

男女別

空調

個別空調

エレベーター

セキュリティ

駐車場

耐震

新耐震基準

基準階天井高

2400mm

空室延床面積

32.84坪

最寄駅

情報更新日

2026/03/02

一番町村上ビルのテナント募集中区画

階数 面積 賃料(共益費含む) 保証金 入居可能日 検討リスト 詳細
4 32.84坪 433,488円/月(13,200円/坪) 236万円
…新着物件

一番町村上ビルのアクセス

一番町村上ビルの物件情報

一番町村上ビル(千代田区一番町)は半蔵門駅(5番出口)から徒歩2分の賃貸オフィスです。
1987年竣工、地上7階建ての鉄骨鉄筋コンクリート造。一番町交差点の付近に建ちます。外観は白のタイル調、一階には現在クリニックが入居中です。基準階面積は約33坪、室内はすっきりとした無柱空間ですので、コンパクトな室内を効率的にレイアウト出来ます。また、角地にあるため二面採光で明るく、換気もしやすいでしょう。当物件にエレベーターは1基設置され、空調は個別空調、トイレは男女別でご使用いただけます。近くにコンビニやスーパーがあり、郵便局も徒歩圏内にありますので気軽に利用可能です。
一番町村上ビルは半蔵門駅(5番出口)の他に麹町駅(3番出口)徒歩9分、市ヶ谷駅(A3番出口)徒歩10分で利用も可能です。

近隣のエリア・駅から探す