赤坂エイトワンビル 2階
物件概要
物件番号
378-00019-81物件名
赤坂エイトワンビル所在地
- 東京都千代田区永田町2-13-5
- アクセスマップ
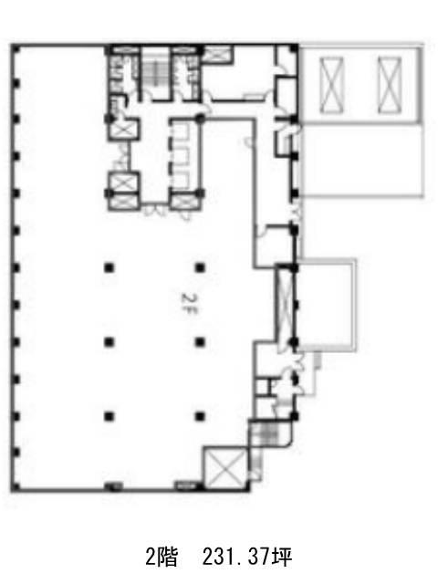
面積
231.37坪賃料(共益費含)
:応相談応相談
入居日
即保証金
応相談礼金
なし更新料
なし償却費
なし竣工
1985年2月構造
SRC規模
地上8階/地下3階トイレ
男女別空調
エレベーター
有セキュリティ
駐車場
有耐震
新耐震基準基準階天井高
2500mm空室延床面積
515.59坪情報更新日
2026/03/03赤坂エイトワンビルのテナント募集中区画
| 階数 | 面積 | 賃料(共益費含む) | 保証金 | 入居可能日 | 検討リスト | 詳細 |
|---|---|---|---|---|---|---|
| 2 | 231.37坪 | 応相談(応相談) | 応相談 | 即 | ||
| 4 | 284.22坪 | 応相談(応相談) | 応相談 | 2026年10月上旬 |
…新着物件
赤坂エイトワンビルのアクセス
赤坂エイトワンビルの物件情報
赤坂エイトワンビル(千代田区永田町)は赤坂見附駅(11番出口)から徒歩2分の賃貸オフィスです。1985年竣工で地上8階建てのビルです。新耐震基準に適合しており、安心してご入居いただけます。エレベーターは3基設置。基準階ワンフロアの規模は約280坪と広々しており、フリーアクセス床となっているので、配線しやすいフロアです。男女別トイレ設置。駐車場は機械式と平置きを併設しており、車の利用もしやすいでしょう。1階には飲食店がテナントとして入っていて便利です。徒歩圏内にはコンビニエンスストアや郵便局、金融機関がございます。赤坂エイトワンビルは赤坂見附駅(11番出口)の他に永田町駅(8番出口)徒歩5分、国会議事堂前駅(5番出口)徒歩6分で利用も可能です。

