宮中ビルのテナント募集中区画
| 階数 | 面積 | 賃料(共益費含む) | 保証金 | 入居可能日 | 検討リスト | 詳細 |
|---|---|---|---|---|---|---|
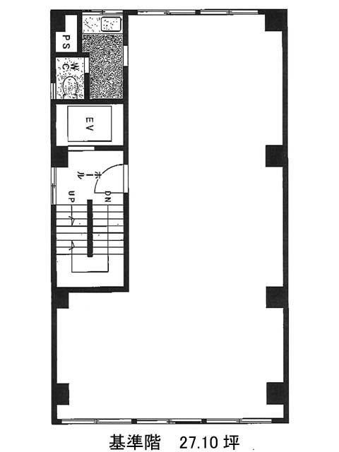
| 3 | 27.10坪 | 327,910円/月(12,100円/坪) | 146万円 | 即 |
…新着物件
アクセス
宮中ビルの物件情報
宮中ビル(千代田区岩本町)は小伝馬町駅(出口2)から徒歩5分の賃貸オフィスです。宮中ビルは小伝馬町駅(出口2)の他に岩本町駅(A5番出口)徒歩6分、新日本橋駅(8番出口)徒歩6分で利用も可能です。

