A-RISE神田のテナント募集中区画
| 階数 | 面積 | 賃料(共益費含む) | 保証金 | 入居可能日 | 検討リスト | 詳細 |
|---|---|---|---|---|---|---|
| 8 | 67.04坪 | 応相談(応相談) | 応相談 | 即 |
…新着物件
A-RISE神田のアクセス
A-RISE神田の物件情報
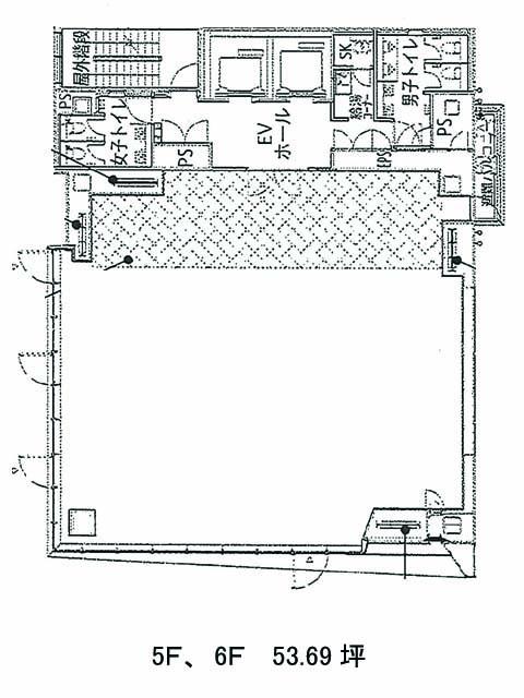
A-RISE神田(千代田区岩本町)は小伝馬町駅(出口1)から徒歩4分の賃貸オフィスです。2015年竣工、新耐震基準に適合した地上8階建てのオフィスビルです。ホワイトとブラックのツートンカラーを基調としたガラスウォールで構成された外観は、大変モダンでデザイン性が高いです。基準階坪数は約55坪。貸室内は落ち着いた色を基調としており、大きな窓がありますので、採光良好です。女性用トイレには小物入れが設置されていて便利です。駐車場も併設されている為、社用車を使う場合も便利です。徒歩圏内にはコンビニエンスストアや郵便局がございますので、利便性が高いです。A-RISE神田は小伝馬町駅(出口1)の他に馬喰町駅(2番出口)徒歩5分、岩本町駅(A4番出口)徒歩7分で利用も可能です。

