2階は現在募集がありません
1フロア募集区画あり

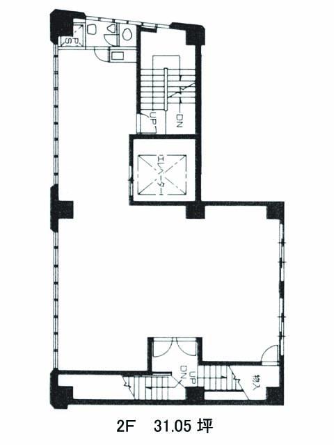
井桁ビル 2階

前の写真 次の写真

物件概要

物件番号

383-00049-10

物件名

井桁ビル

所在地

面積

31.05坪

賃料(共益費含)


入居日

募集終了

保証金

礼金

更新料

償却費

竣工

1971年6月

構造

SRC

規模

地上7階/地下1階

トイレ

男女共用

空調

個別空調

エレベーター

セキュリティ

駐車場

耐震

旧耐震基準

基準階天井高

空室延床面積

35.90坪

最寄駅

情報更新日

2026/02/12

井桁ビルのテナント募集中区画

階数 面積 賃料(共益費含む) 保証金 入居可能日 検討リスト 詳細
5 35.90坪 440,000円/月(12,257円/坪) 120万円 2026年3月上旬
…新着物件

井桁ビルのアクセス

井桁ビルの物件情報

井桁ビル(千代田区岩本町)は小伝馬町駅(出口2)から徒歩4分の賃貸オフィスです。
物件は大通りに面した角地にあり、白を基調とした外観は低層階が個性的なデザインになっているため視認性は良好かと思います。井桁ビルの貸室は各30坪前後です。お手洗い一つと給湯の水回り設備は室内の端に設置されていますが、お部屋がL字に近い形ですので、そこまで気にせずに使用できそうです。
小伝馬町駅の他に岩本町へ徒歩5分でアクセスが可能です。また、秋葉原や神田も徒歩圏内ですので、JR線に乗車したい場合や、お手土産などの買い物にも便利でしょう。
井桁ビルは小伝馬町駅(出口2)の他に岩本町駅(A5番出口)徒歩5分、新日本橋駅(8番出口)徒歩7分で利用も可能です。

近隣のエリア・駅から探す