TRUST VALUE 岩本町のテナント募集中区画
| 階数 | 面積 | 賃料(共益費含む) | 保証金 | 入居可能日 | 検討リスト | 詳細 |
|---|---|---|---|---|---|---|
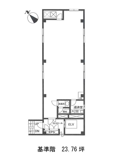
| 3 | 25.97坪 | 380,026円/月(14,633円/坪) | 196万円 | 相談 |
…新着物件
アクセス
TRUST VALUE 岩本町の物件情報
TRUST VALUE 岩本町(千代田区岩本町)は馬喰町駅(2番出口)から徒歩4分の賃貸オフィスです。TRUST VALUE 岩本町は馬喰町駅(2番出口)の他に小伝馬町駅(出口1)徒歩5分、馬喰横山駅(A1番出口)徒歩6分で利用も可能です。

