TRUST VALUE 岩本町 3階
物件概要
物件番号
383-00069-82物件名
TRUST VALUE 岩本町所在地
- 東京都千代田区岩本町1-13-5
- アクセスマップ
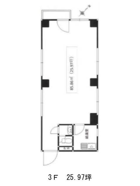
面積
25.97坪賃料(共益費含)
月額380,026円(14,633円/坪)
入居日
相談保証金
1,963,644円礼金
1ケ月更新料
なし償却費
1ケ月竣工
1994年1月構造
S造規模
地上8階トイレ
男女共用空調
個別空調エレベーター
有セキュリティ
有駐車場
無耐震
新耐震基準基準階天井高
2500mm空室延床面積
25.97坪情報更新日
2025/09/10TRUST VALUE 岩本町のテナント募集中区画
| 階数 | 面積 | 賃料(共益費含む) | 保証金 | 入居可能日 | 検討リスト | 詳細 |
|---|---|---|---|---|---|---|
| 3 | 25.97坪 | 380,026円/月(14,633円/坪) | 196万円 | 相談 |
…新着物件
アクセス
TRUST VALUE 岩本町の物件情報
TRUST VALUE 岩本町(千代田区岩本町)は馬喰町駅(2番出口)から徒歩4分の賃貸オフィスです。TRUST VALUE 岩本町は馬喰町駅(2番出口)の他に小伝馬町駅(出口1)徒歩5分、馬喰横山駅(A1番出口)徒歩6分で利用も可能です。

