東プレビル 5階 503
物件概要
物件番号
387-00060-13物件名
東プレビル所在地
- 東京都千代田区五番町4-2
- アクセスマップ
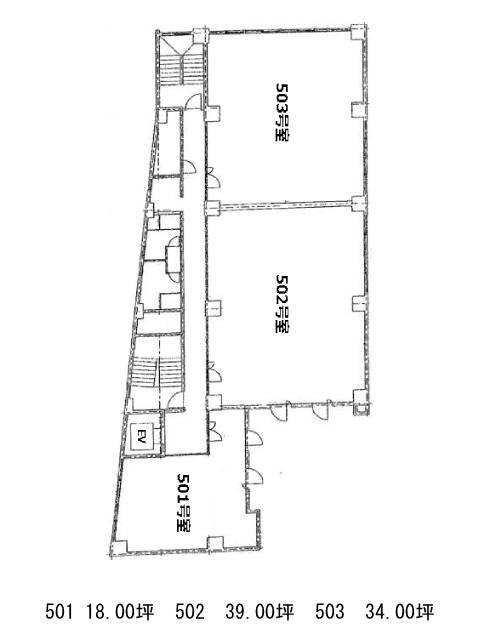
面積
34.00坪賃料(共益費含)
月額654,500円(19,250円/坪)
入居日
2026年2月下旬保証金
4,080,000円礼金
2ケ月更新料
新1ケ月償却費
なし竣工
1978年12月構造
SRC規模
地上8階/地下2階トイレ
不明空調
個別空調エレベーター
有セキュリティ
駐車場
無耐震
旧耐震基準基準階天井高
空室延床面積
548.34坪情報更新日
2025/12/12東プレビルのテナント募集中区画
…新着物件
アクセス
東プレビルの物件情報
東プレビル(千代田区五番町)は市ヶ谷駅(4番出口)から徒歩2分の賃貸オフィスです。東プレビルは市ヶ谷駅(4番出口)の他に麹町駅(6番出口)徒歩6分、四ツ谷駅(麹町口)徒歩10分で利用も可能です。

