桜井ビル 3階
物件概要
物件番号
388-00101-10物件名
桜井ビル所在地
- 東京都千代田区麹町4-5
- アクセスマップ
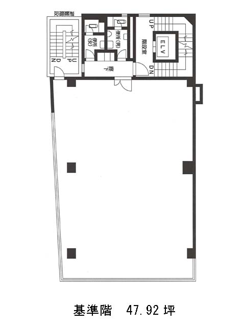
面積
47.92坪賃料(共益費含)
月額737,968円(15,400円/坪)
入居日
即保証金
3,162,720円礼金
なし更新料
なし償却費
なし竣工
1977年10月構造
SRC規模
地上9階/地下1階トイレ
男女別空調
個別空調エレベーター
有セキュリティ
駐車場
無耐震
旧耐震基準基準階天井高
空室延床面積
95.84坪情報更新日
2025/08/26桜井ビルのテナント募集中区画
| 階数 | 面積 | 賃料(共益費含む) | 保証金 | 入居可能日 | 検討リスト | 詳細 |
|---|---|---|---|---|---|---|
| 3 | 47.92坪 | 737,968円/月(15,400円/坪) | 316万円 | 即 | ||
| 4 | 47.92坪 | 737,968円/月(15,400円/坪) | 316万円 | 即 |
…新着物件
アクセス
桜井ビルの物件情報
桜井ビル(千代田区麹町)は麹町駅(2番出口)から徒歩1分の賃貸オフィスです。2011年にリニューアル工事を完了しました。白い外壁の間を通るライン上の窓がきちんとした印象の外観です。ワンフロアは約50坪、室内は長方形が確保された間取りで、柱が窓際にありますのでレイアウトがしやすいでしょう。エレベーターと男女別トイレは室外にありますので、室内スペースを有効に使えます。その他の設備としてOAフロア、個別空調が備えられています。隣には郵便局があり、コンビニ・スーパー・飲食店の充実した新宿通りにもすぐに出られる利便性が魅力の立地です。桜井ビルは麹町駅(2番出口)の他に半蔵門駅(2番出口)徒歩6分、永田町駅(9b番出口)徒歩8分で利用も可能です。

